Khi nhắc đến Nhà Mẫu Da Nang Downtown, nhiều người sẽ ngay lập tức nghĩ đến không gian sống sang trọng và tiện nghi bên dòng sông Hàn thơ mộng.
Nhà mẫu The Foresta dự án THE FORESTA KHANG ĐIỀN được thiết kế theo phong cách tao nhã và không kém phần sang trọng. Không gian mở giúp cho ngôi nhà trở nên rộng rãi và đón nhiều không gian ánh sáng hơn.
Bài viết này sẽ mang đến thông tin chi tiết về bảng giá & chính sách bán hàng của dự án, giúp bạn có cái nhìn toàn diện về cơ hội sở hữu một tổ ấm lý tưởng tại The Foresta Khang Điền.
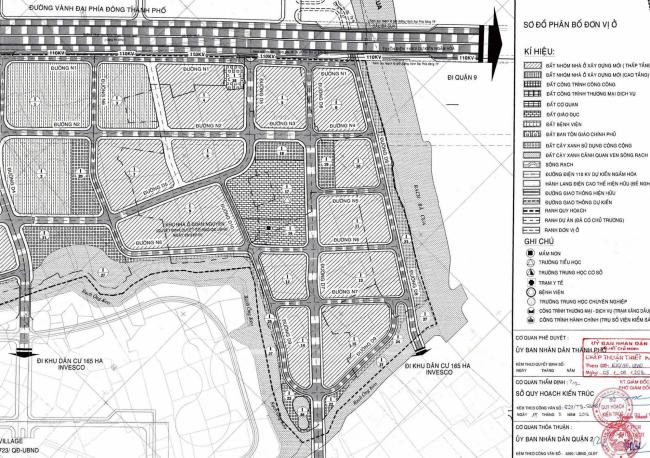
Dự án The Foresta Khang Điền là một trong những dự án bất động sản cao cấp được mong chờ nhất tại thành phố Thủ Đức. Nằm trong khu vực phát triển sôi động, The Foresta mang đến cho cư dân một không gian sống đẳng cấp, tiện nghi và đầy đủ tiện ích. Mặt bằng chi tiết của dự án là một trong những yếu t
Địa chỉ Vị trí dự án The Classia Khang Điền tọa lạc tại số 454 mặt tiền đường Võ Chí Công, phường Phú Hữu, một trong những khu vực phát triển năng động của quận 9, sở hữu nhiều lợi thế về hạ tầng giao thông, tiện ích và môi trường sống. Bài viết này sẽ cung cấp thông tin chi tiết về dự án The Classi
Gladia Khang Điền tọa lạc tai Quận 9 cũ và sở hữu một địa thế tuyệt dẹp, có phong…
Melosa Garden tọa lạc tai Quận 9 cũ và sở hữu một địa thế tuyệt dẹp, có phong thủy…
Dự án Nhà phố Merita Khang Điền tọa lạc ngay mặt tiền đường Liên Phường, P. Phước…
Verosa Park là dự án nhà phố liền kề, biệt thự cao cấp của chủ đầu tư Khang Điền…
The Foresta là sản phẩm nhà phố, biệt thự cao cấp của Khang Điền hợp tác cùng Keppel…
The Classia Khang Điền là dự án nhà phố liền kề, biệt thự cao cấp của chủ đầu tư…




